康派智能低压电动机保护器带RS485通讯LCD液晶显示
康派智能低压电动机保护器带RS485通讯LCD液晶显示
产品价格:¥890.00(人民币)
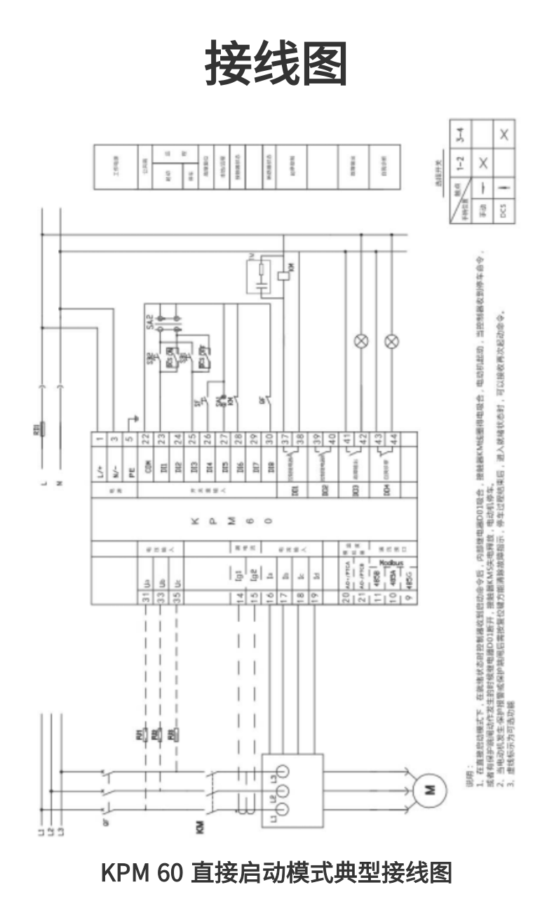
  • 规格:KPM60马达保护器
  • 发货地:河南郑州
  • 品牌:
  • 最小起订量:1
  • 免费会员
    会员级别:试用会员
    认证类型:企业认证
    企业证件:通过认证

    商铺名称:河南康派智能技术有限公司

    联系人:康派智能-董工(先生)

    联系手机:

    固定电话:

    企业邮箱:zhiyang.dong@xj-info.com

    联系地址:东明路南41号

    邮编:450000

    联系我时,请说是在变革智能网上看到的,谢谢!

    商品详情
      产品参数
      是否支持加工定制
      参比电压660V
      电流倍率1000
      电源性质220v
      基本电流5A
      频率55Hz
      显示方式LCD
      相数三相四线
      准确度等级0.5s级
      颜色分类绿色
      通讯接口Modbus协议
      主要功能报警和控制
      辅助电源24V
      开关量输入2路
      品牌COMPERE












    0571-87774297